...
...



Подробная спецификация включает все материалы и работы, входящие в стоимость строительства.
Каркасная технология -- один из самых быстрых и экономичных способов построить загородный дом.
Каркасный дом строится за 3-4 месяца. Стены собираются за считанные дни -- один из самых быстрых способов получить готовый дом.
Утепление ROCKWOOL до 250 мм. Дом прогревается за 2-3 часа и отлично держит тепло даже в сильные морозы.
Каркасная технология экономит до 30% бюджета. Легкий фундамент на сваях, быстрый монтаж -- меньше затрат на каждом этапе.
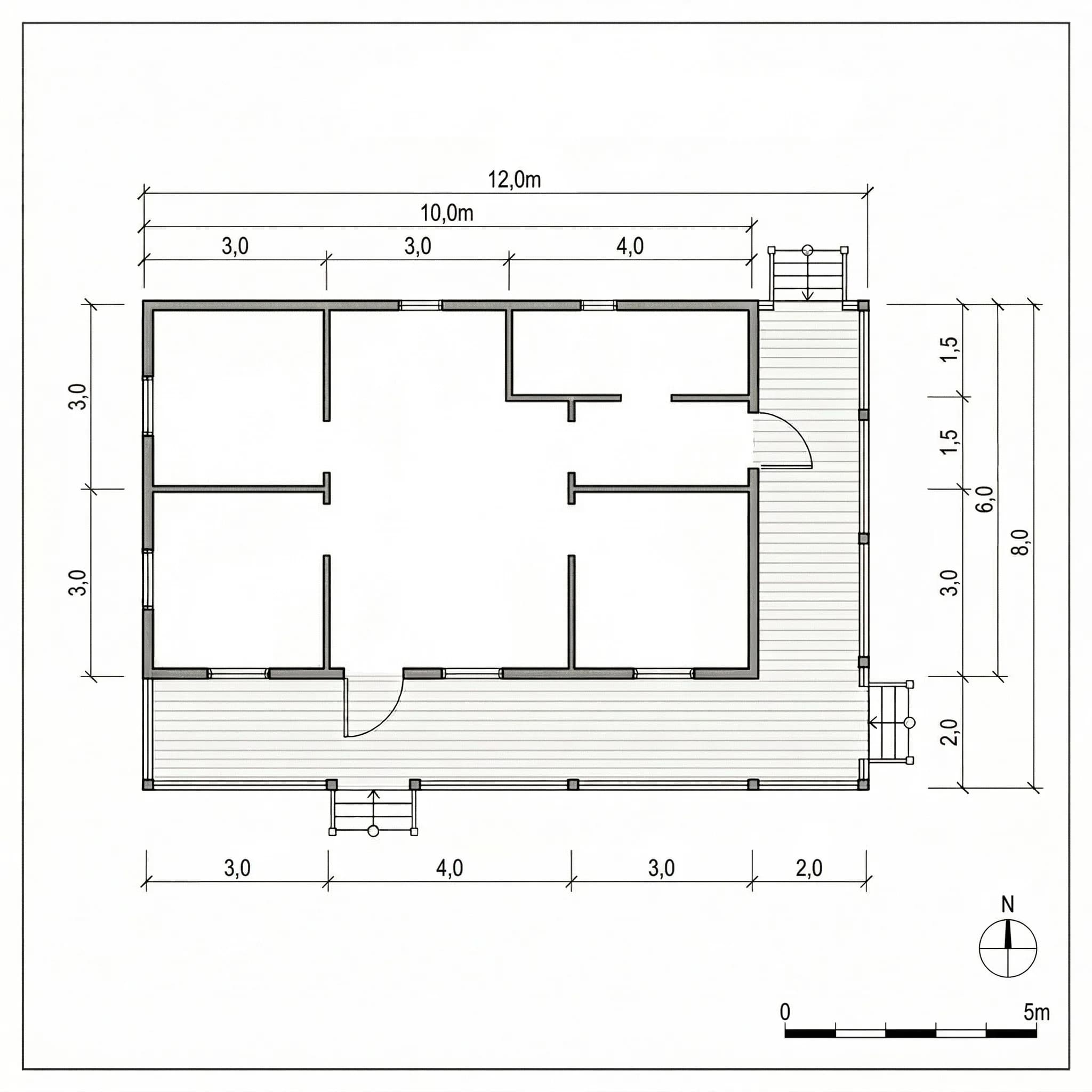
Нет несущих внутренних стен -- любая конфигурация комнат. Объединить, разделить, перенести -- все возможно.
Одноэтажный дом -- без лестниц, удобно для всех возрастов. Стены дышат, поддерживая оптимальную влажность.
VEKA окна, ROCKWOOL утеплитель, GRANDLINE кровля, DOCKE водостоки -- только сертифицированные бренды.
Оставьте заявку — мы свяжемся с вами, уточним детали и предложим лучшее решение под ваш участок и бюджет.
Ответим в течение 30 минут
+7921-76-76-76-1
info.stroyinvest24@gmail.com
Мы перезвоним и бесплатно проконсультируем